충북
Chungbuk
전파플레이그라운드 - 충북
전파플레이그라운드-충북은 대형 전자파 차폐실과 디버깅 챔버, 그리고 다양한 시험장비를 갖춘 전파시험시설 입니다.
자율주행 레이더, 로봇 및 드론용 탐지센서, 5G 통신기기, 무선 충전기기 등 전파를 활용한
제품을 출시하기 위해 필요한 전자파 특성 시험·분석을 진행할 수 있습니다.
전파플레이그라운드-충북은 국내전파산업 활성화와 지역 기업들이 성장할 수 있는 기반 시설로 기업이 자유롭게 전파시험을 하고,
맞춤형 기술지원을 받을 수 있는 광범위한 전파 산업을 선도합니다.
특히, 초연결 사회로 진입하며 더욱 복잡해진 실생활 전파 환경과 유사한 전파 시험 환경 조성을 통해 제품·부품에 대한
더욱 엄격하고 다양한 시험이 진행될 수 있도록 전문적인 시험·분석과 기업 지원 장비를 보유하고 있습니다.
시설 대형 전자파 차폐실
챔버 내부
- 크기 : (내부) 44m(L) x 28m(W) x 10m(H)
차폐 특성(Shield Effectiveness)
| Field | 주파수 범위 | 허용범위 | 적용규격 |
|---|---|---|---|
| Magnetic field | 14 kHz | 70 dB 이상 | IEEE-299(2006) |
| 200 kHz | 100 dB 이상 | ||
| Electric field | 200 kHz ~ 50 MHz | 100 dB 이상 | |
| Plane wave | 50 MHz ~ 1 GHz | 100 dB 이상 | |
| Microwave | 1 GHz ~ 18 GHz | 100 dB 이상 | |
| mmWave | 28 GHz | 90 dB 이상 | |
| 40 GHz | 80 dB 이상 |
흡수체 (Absorber)
| Section | Freq | Absorbers Characterization | Fire Resistance | Power Handling | 재질 | Size |
|---|---|---|---|---|---|---|
| Wall, Ceiling |
500MHz ~100GHz |
Reflectivity 성능 500MHz~100GHz |
NRL 8093, UL94HBF 동등사양 이상 |
200V/m CW 이상 |
Polypropylene 동등사양 이상 |
600mm x 600mm x 200mmH |
Door Size 및 Type
| Door Type | Size | Qty | Remarks |
|---|---|---|---|
| Main Door | 4.8m(W) x 5.0m(H) | 1EA | Full Auto Sliding Door |
| Sub Door | 1.2m(W) x 2.0m(H) | 1EA | Semi-Auto Swing Door |
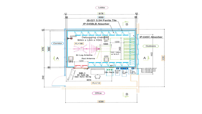
3m 디버깅 챔버 구축
- 자동차부품 및 일반 산업제품의 전자파 및 RF 특성 시험과 디버깅을 지원할 수 있는 3m법 전자파측정 챔버 구축
- 중소기업 기술사업화 지원을 위한 전자파, RF 특성 평가 및 디버깅 지원
-
챔버 설계도

-
3m 챔버
